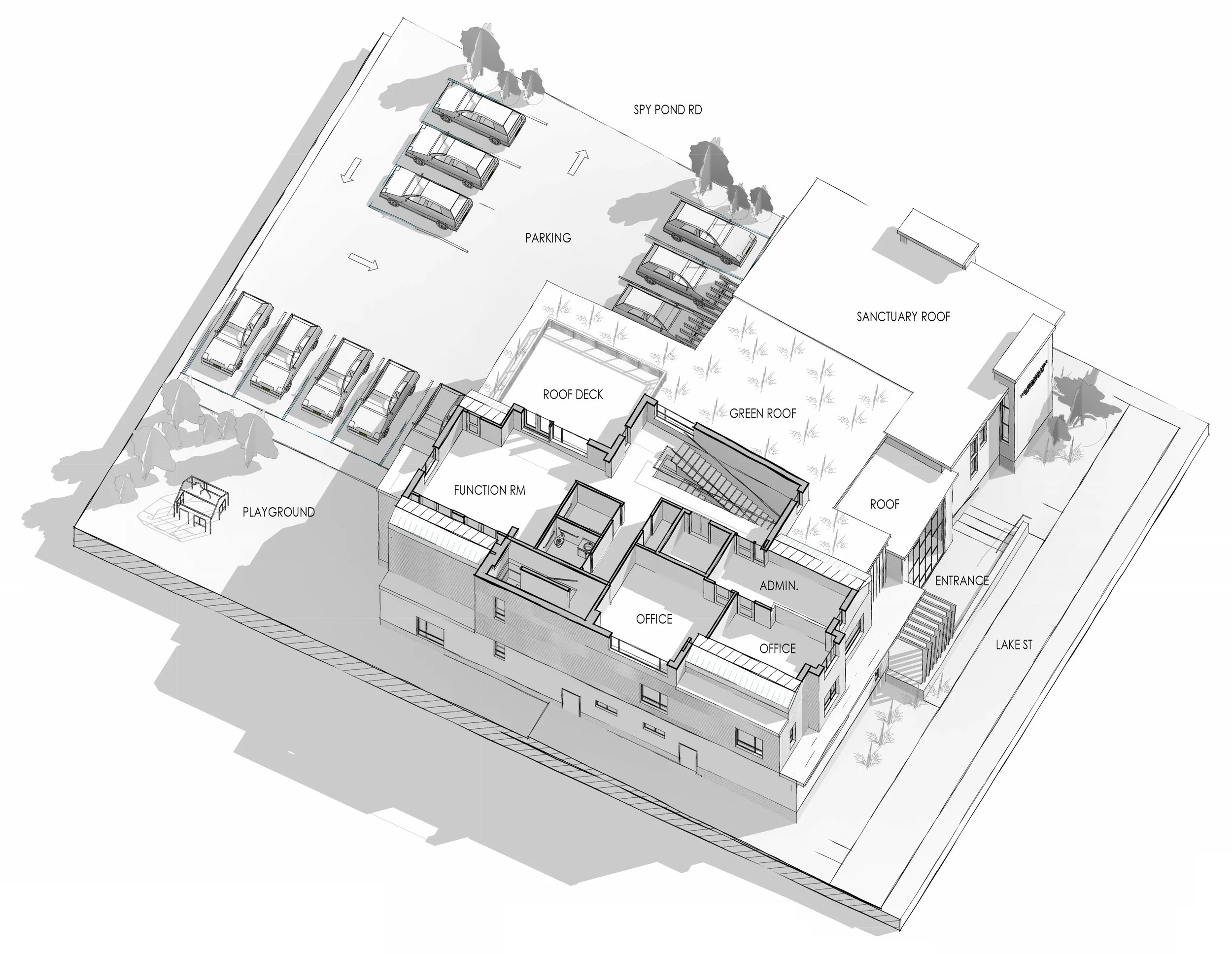
center for jewish life

Situated in the heart of Arlington, Center for Jewish Life ‘s numerous programs and activities provide the education and means to promote Jewish knowledge, awareness, and practice to experience our Jewish heritage connecting us to our past, present, and future. Center for Jewish Life encourages positive action on the part of each Jew and offers its educational programs to all Jewish organizations, synagogues and groups in its efforts to increase Jewish knowledge and observance.